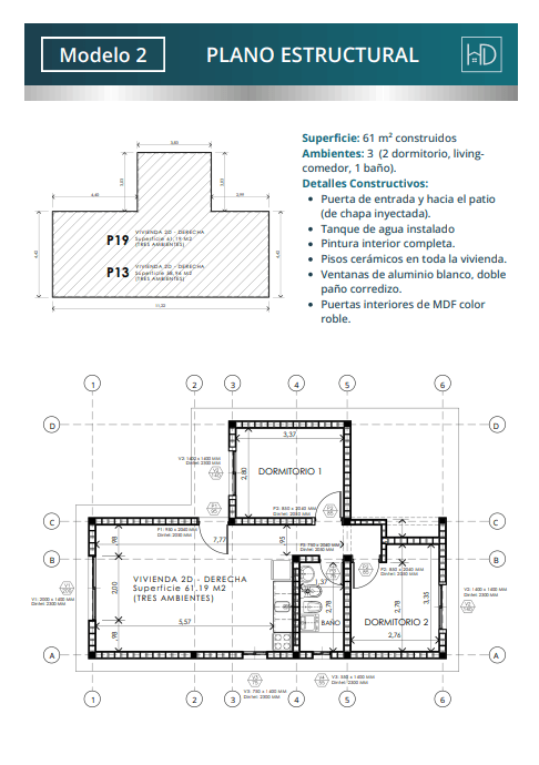
MODELO 2
CASA DE 61 METROS CUADRADOS
Contactanos para obtener más información sobre disponibilidad, financiación y todo lo que necesites saber.